загрузка карты...

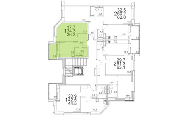
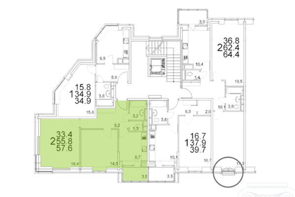
3х-комнатная квартира, 81.1 м2 в ЖК "Усадьба Суханово"

Район: Ленинский Метро: Улица Скобелевская Адрес: Московская область, пос. Булатниковское, д. Суханово
Добавить ЖК в избранное
Характеристики
Описание
Похожие квартиры

Основные характеристики

Застройщик
Комнат
3
Этаж
1
Площадь общая
81.1
Адрес дома
Московская область, пос. Булатниковское, д. Суханово
Корпус
2
Ближайшее метро
Район
Тип дома
Кирпично-монолитный
Плановый срок сдачи
IV квартал 2016
Цена за кв метр
75 000 руб/м2
Стоимость квартиры
6 082 500 руб

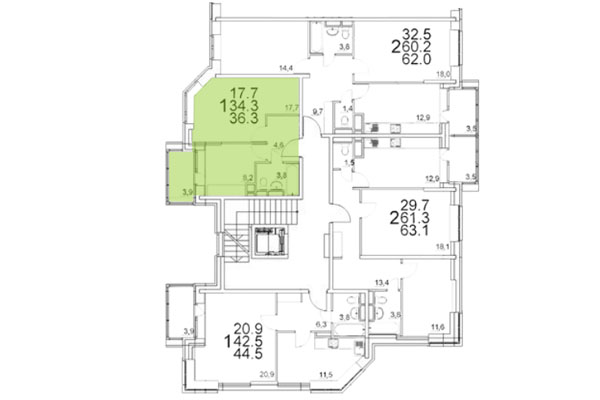
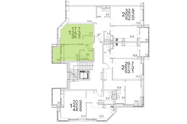
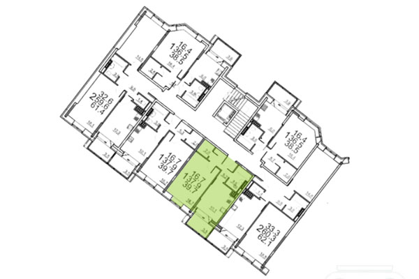
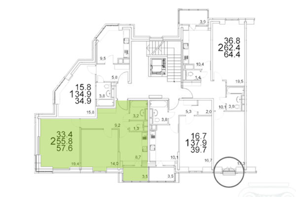
Описание

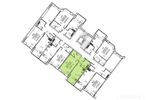
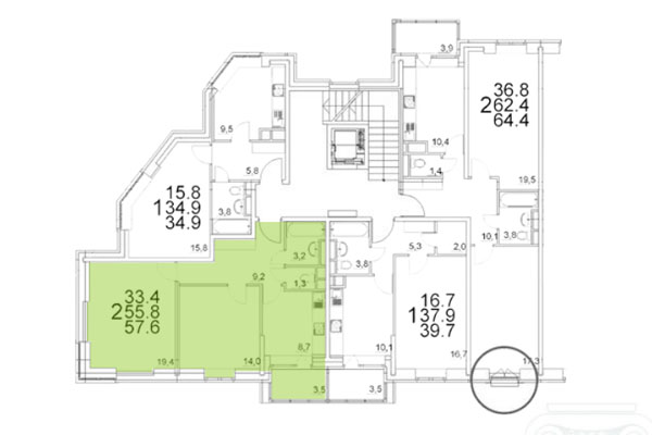
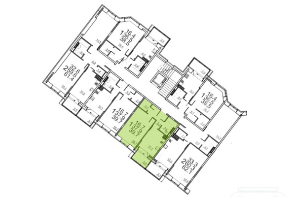
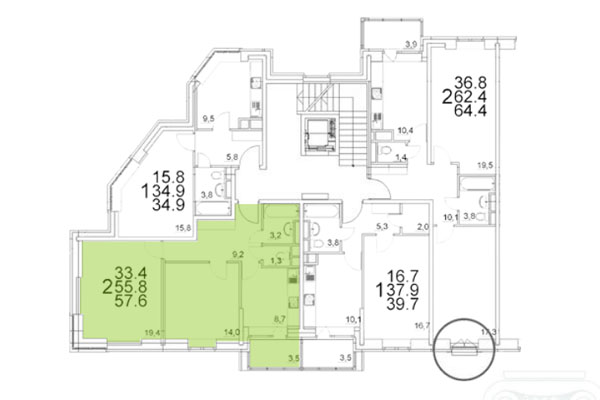
Продается 3х-комнатная квартира 81.1 м². в ЖК Усадьба Суханово стоимостью 6 082 500 рублей. Квартира находится по адресу Московская область, пос. Булатниковское, д. Суханово недалеко от метро Улица Скобелевская в районе Ленинский. Данная квартира находится на 1 этаже 5 этажного монолитного дома. , в квартире 3 комнаты. В нашем каталоге вы сможете найти и другие 3 комнатные квартиры в ЖК Усадьба Суханово, сданным в эксплуатацию, от 3 199 500 рублей на нашем портале!
Остались вопросы? Получите консультацию эксперта!
Если у вас остались вопросы или вы не можете определиться наш эксперт поможет вам и ответит на все ваши вопросы