загрузка карты...
Добавить ЖК в избранное
Характеристики
Описание
Похожие квартиры

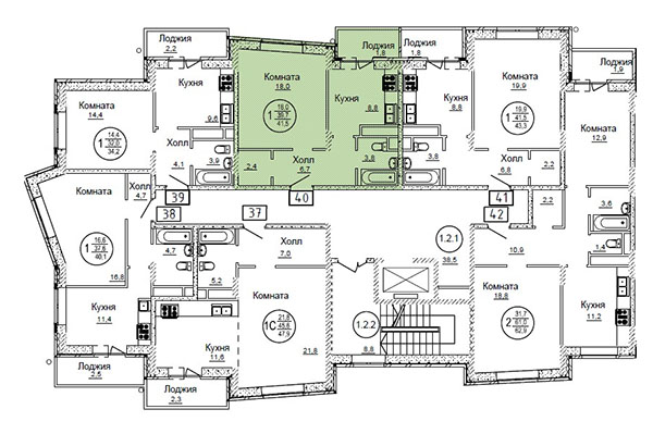
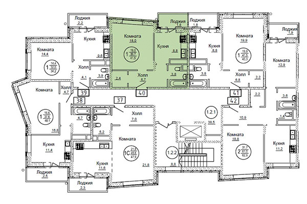
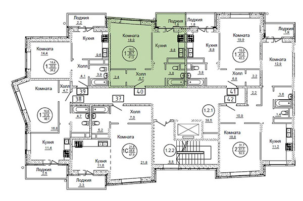
Основные характеристики

Комнат
1
Этаж
6
Площадь общая
47.9
Адрес дома
Московская область, п. Смирновка
Корпус
56
Ближайшее метро
Тип дома
Кирпично-монолитный
Плановый срок сдачи
III квартал 2016
Цена за кв метр
50 000 руб/м2
Стоимость квартиры
2 371 200 руб

Описание

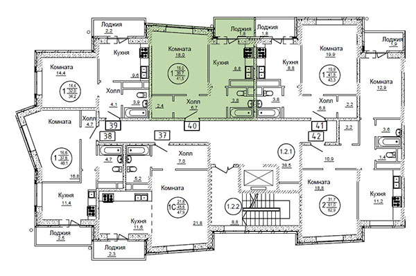
Продается квартира-студия 47.9 м². в ЖК Смирновка стоимостью 2 371 200 рублей. Квартира находится по адресу Московская область, п. Смирновка недалеко от метро Речной вокзал в районе Солнечногорский. Данная квартира находится на 6 этаже 7 этажного монолитного дома. , в квартире 1 комната. В нашем каталоге вы сможете найти и другие 1 комнатные квартиры в ЖК Смирновка, сданным в эксплуатацию, от 1 822 500 рублей на нашем портале!
Остались вопросы? Получите консультацию эксперта!
Если у вас остались вопросы или вы не можете определиться наш эксперт поможет вам и ответит на все ваши вопросы