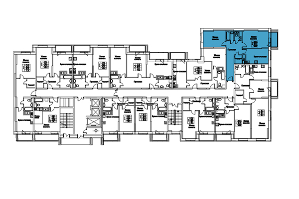
2-комнатные квартиры в жилом комплексе Видный берег
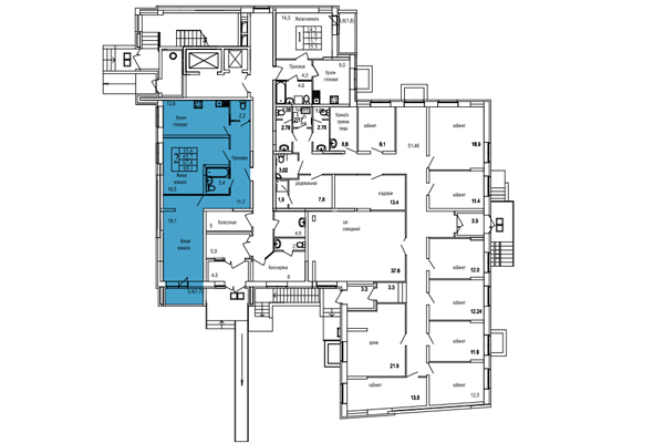
Корпус:
8
Этаж:
5
Кол-во комнат:
2 комн.
Площадь:
68.9 м2
Стоимость:
5.2 млн.
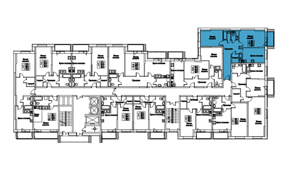
Корпус:
8
Этаж:
10
Кол-во комнат:
2 комн.
Площадь:
73.2 м2
Стоимость:
5.2 млн.
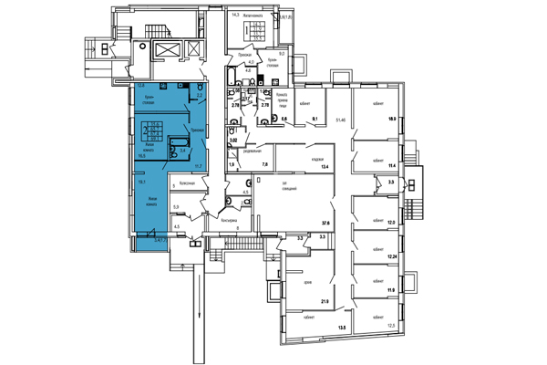
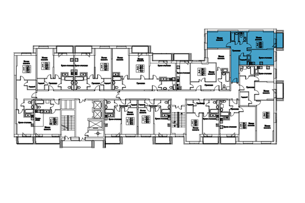
Корпус:
8
Этаж:
3
Кол-во комнат:
2 комн.
Площадь:
73.2 м2
Стоимость:
5.2 млн.
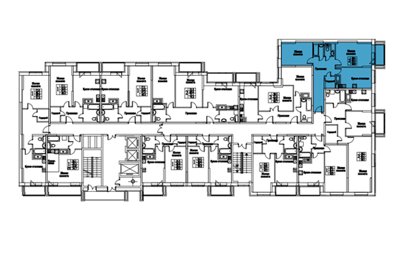
Корпус:
8
Этаж:
4
Кол-во комнат:
2 комн.
Площадь:
73.2 м2
Стоимость:
5.2 млн.
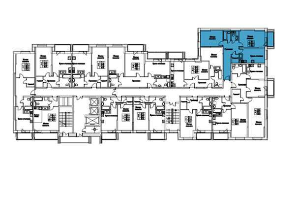
Корпус:
8
Этаж:
8
Кол-во комнат:
2 комн.
Площадь:
73.2 м2
Стоимость:
5.2 млн.
Корпус:
1
Этаж:
1
Кол-во комнат:
2 комн.
Площадь:
77.9 м2
Стоимость:
5.5 млн.
Корпус:
1
Этаж:
2
Кол-во комнат:
2 комн.
Площадь:
77.1 м2
Стоимость:
5.7 млн.
