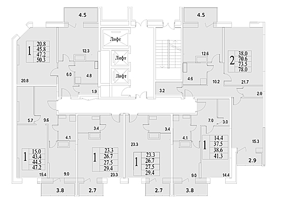
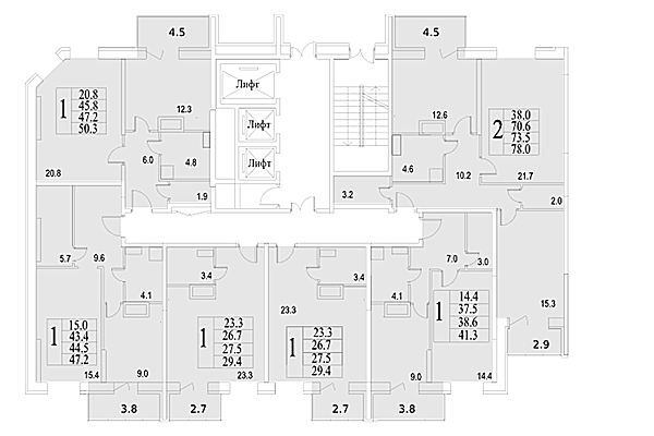
1-комнатные квартиры в жилом комплексе Академический (г. Люберцы)
Корпус:
—
Этаж:
25
Кол-во комнат:
1 комн.
Площадь:
47.5 м2
Стоимость:
5.1 млн.
Корпус:
—
Этаж:
25
Кол-во комнат:
1 комн.
Площадь:
43.8 м2
Стоимость:
5.1 млн.
Корпус:
—
Этаж:
22
Кол-во комнат:
1 комн.
Площадь:
44.2 м2
Стоимость:
5.1 млн.
Корпус:
—
Этаж:
10
Кол-во комнат:
1 комн.
Площадь:
47.5 м2
Стоимость:
5.2 млн.
Корпус:
—
Этаж:
11
Кол-во комнат:
1 комн.
Площадь:
47.5 м2
Стоимость:
5.2 млн.
Корпус:
—
Этаж:
12
Кол-во комнат:
1 комн.
Площадь:
47.5 м2
Стоимость:
5.2 млн.
Корпус:
—
Этаж:
25
Кол-во комнат:
1 комн.
Площадь:
44.3 м2
Стоимость:
5.2 млн.
Корпус:
—
Этаж:
6
Кол-во комнат:
1 комн.
Площадь:
47.6 м2
Стоимость:
5.2 млн.
Корпус:
—
Этаж:
7
Кол-во комнат:
1 комн.
Площадь:
47.6 м2
Стоимость:
5.2 млн.
Корпус:
—
Этаж:
9
Кол-во комнат:
1 комн.
Площадь:
47.6 м2
Стоимость:
5.2 млн.
