3-комнатные квартиры в жилом комплексе Новокосино
Корпус:
1
Этаж:
2
Кол-во комнат:
3 комн.
Площадь:
81.85 м2
Стоимость:
10.0 млн.
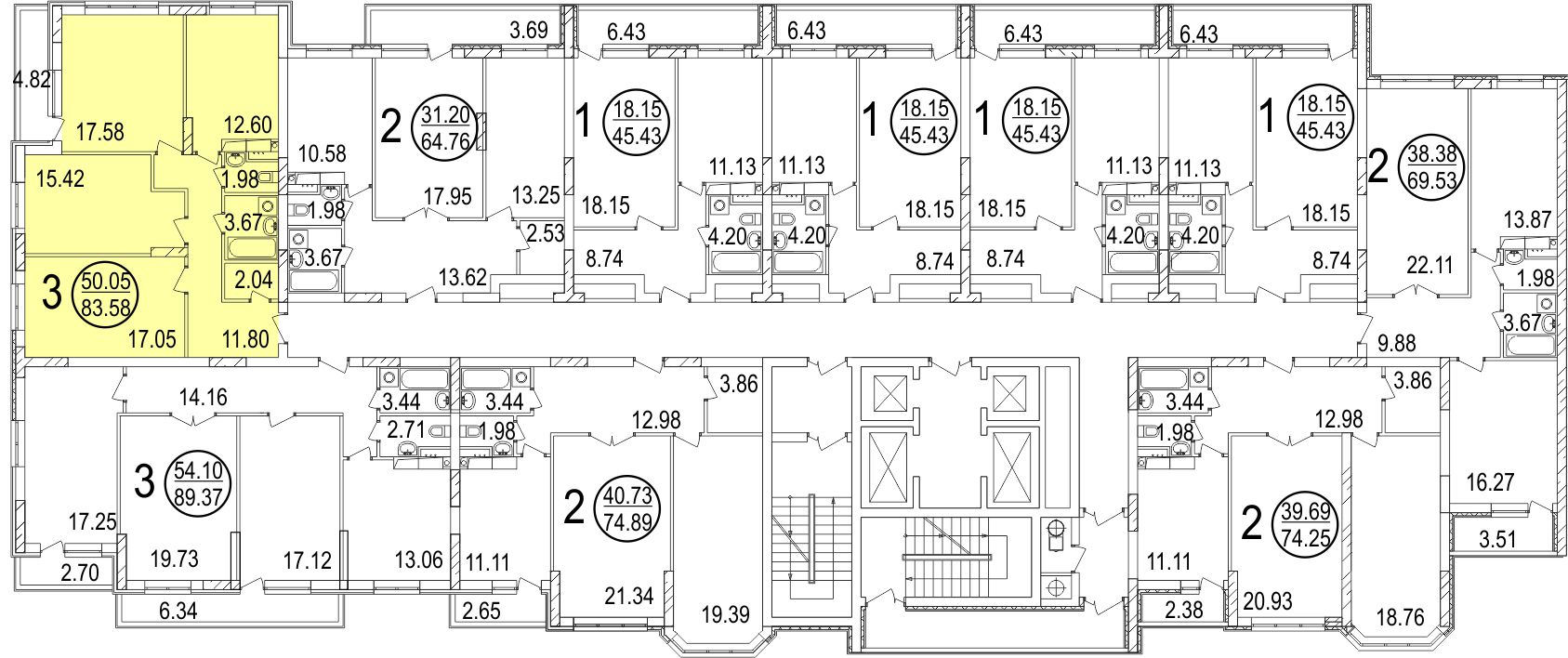
Корпус:
2
Этаж:
2
Кол-во комнат:
3 комн.
Площадь:
83.58 м2
Стоимость:
10.2 млн.
Корпус:
3
Этаж:
6
Кол-во комнат:
3 комн.
Площадь:
96.3 м2
Стоимость:
10.4 млн.
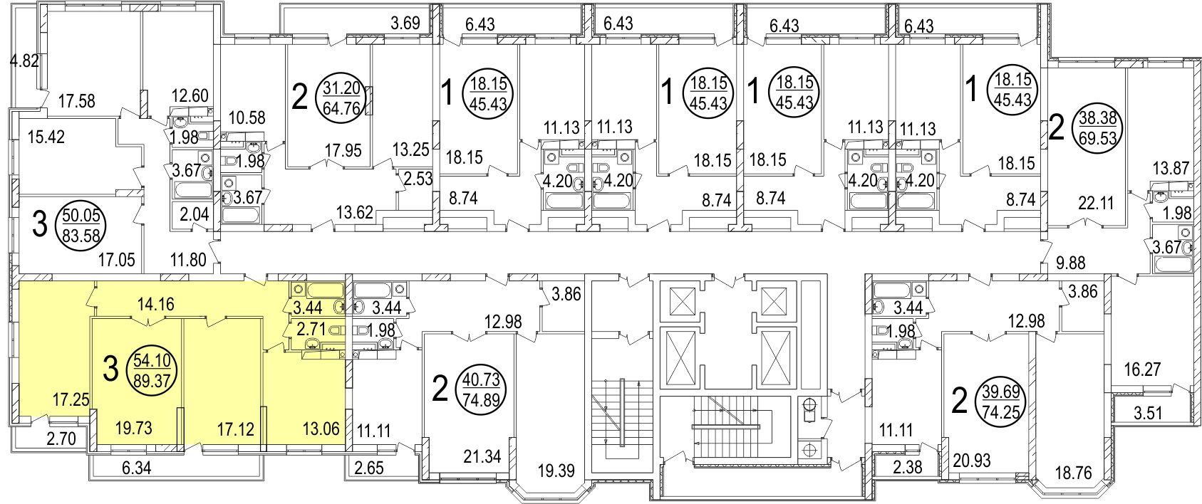
Корпус:
2
Этаж:
2
Кол-во комнат:
3 комн.
Площадь:
89.37 м2
Стоимость:
10.5 млн.
Корпус:
3
Этаж:
2
Кол-во комнат:
3 комн.
Площадь:
91.8 м2
Стоимость:
10.7 млн.
Корпус:
3
Этаж:
2
Кол-во комнат:
3 комн.
Площадь:
95.4 м2
Стоимость:
11.0 млн.
Корпус:
3
Этаж:
25
Кол-во комнат:
3 комн.
Площадь:
95.4 м2
Стоимость:
11.4 млн.
